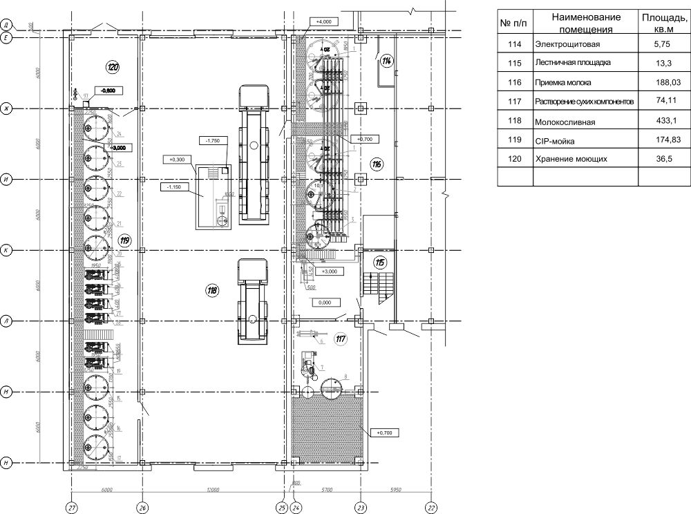
Техническое перевооружение производственных мощностей ОАО «Молоко»

Состав проекта:

  • Обследование технического состояния.
  • Полный проект технического перевооружения действующего предприятия.
  • Экспертиза промбезопасности.
В работе
0
© 2026 г. Череповец, пр. Строителей, д. 16а, 1 этаж. Все права защищены.