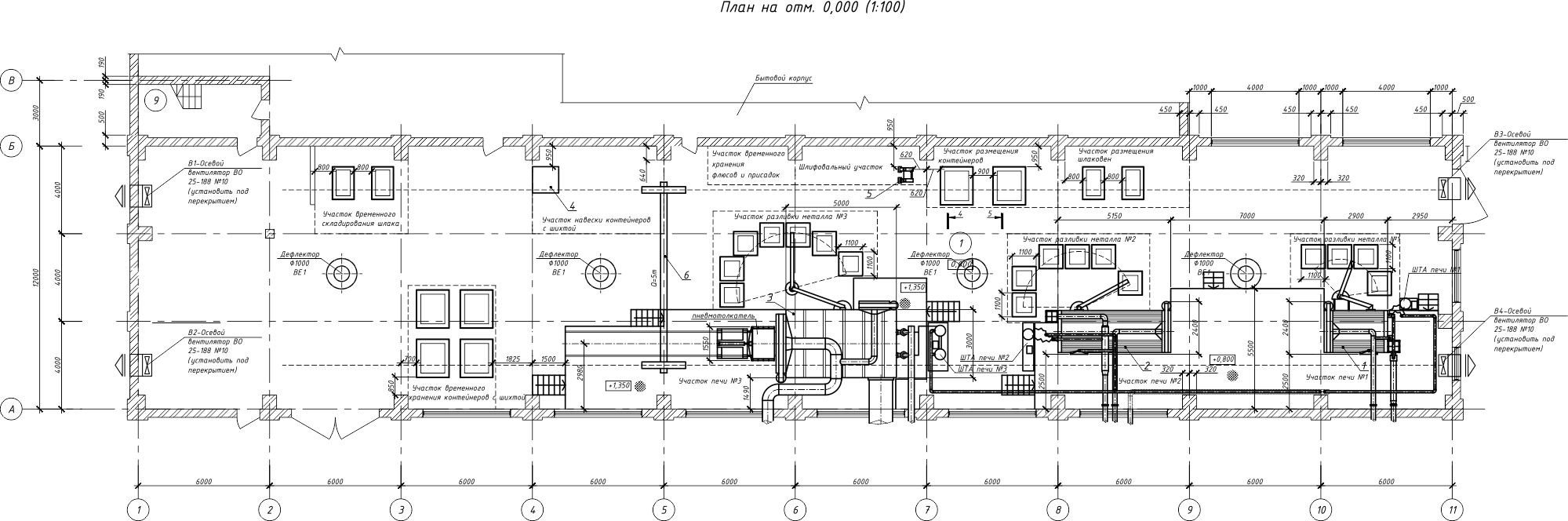
Техническое перевооружение предприятия

Город:  Электросталь

Состав проекта:

  • Обследование технического состояния.
  • Инженерные изыскания.
  • Рабочая документация.
  • Экспертиза промбезопасности.

 

В работе
0
© 2026 г. Череповец, пр. Строителей, д. 16а, 1 этаж. Все права защищены.