Памятник истории и культуры  «Усадьба Ноготковых. Главный  дом»

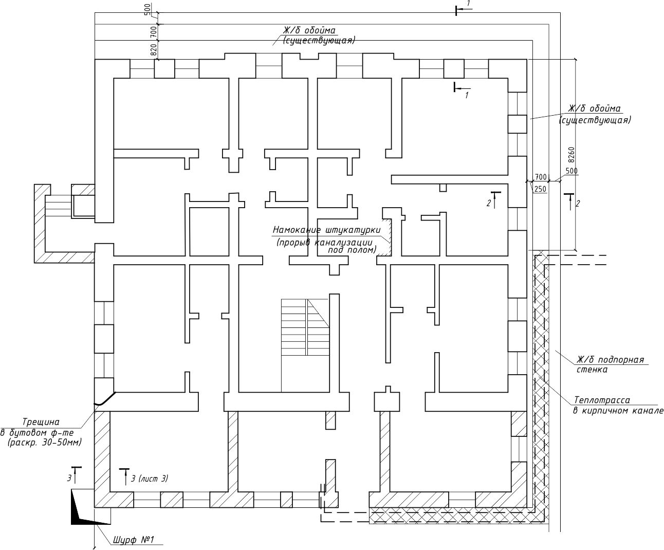
Проект: Капитальный ремонт фундамента в многоквартирном доме

Время постройки: первая половина XIX в.

Адрес:  Вологодская область, г. Великий Устюг, ул. Красная, 103.

Состав проекта:

  • Инженерные исследования.
  • Инженерно-конструкторские решения.
  • Сметная документация.
В работе
0
© 2025 г. Череповец, пр. Строителей, д. 16а, 1 этаж. Все права защищены.