Памятник истории и культуры  «Дом Трилиных»

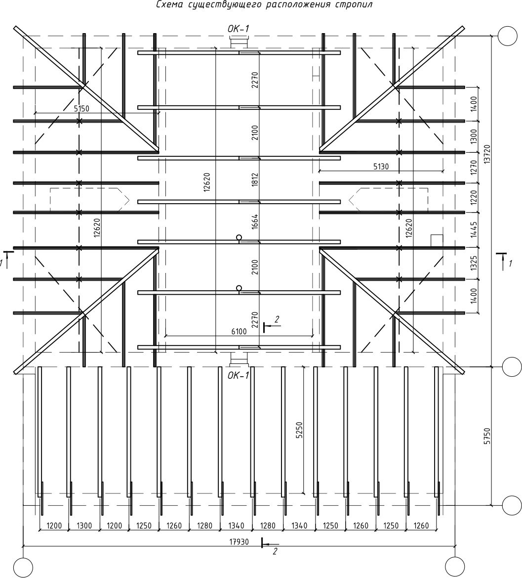
Проект: Капитальный ремонт крыши в многоквартирном доме

Время постройки: конец XVIII - начало XIX в.в.

Адрес:  Вологодская область, г. Великий Устюг, Советский пр., 137.

Состав проекта:

  • Инженерные исследования.
  • Инженерно-конструкторские решения.
  • Сметная документация.
В работе
0
© 2026 г. Череповец, пр. Строителей, д. 16а, 1 этаж. Все права защищены.